Barleo Industrial Park - Unit FOR SALE

N$1,800,000
Property Details

Warehouse for Sale in Prime Industrial Location - Barleo Park

Discover an exceptional investment opportunity with this double-storey warehouse available for sale in Barleo Park. Situated in a thriving industrial hub just north of the power station, this property is conveniently located a short distance from the northern branch of Pupkewitz and only a 10-minute drive from the Lafrenz Industrial Area and the western bypass.

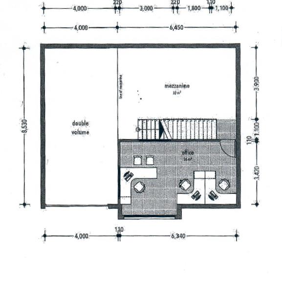
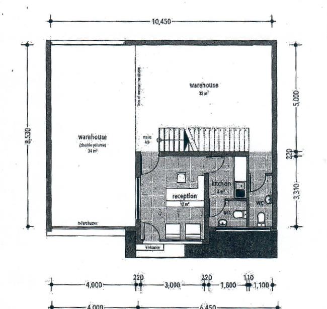
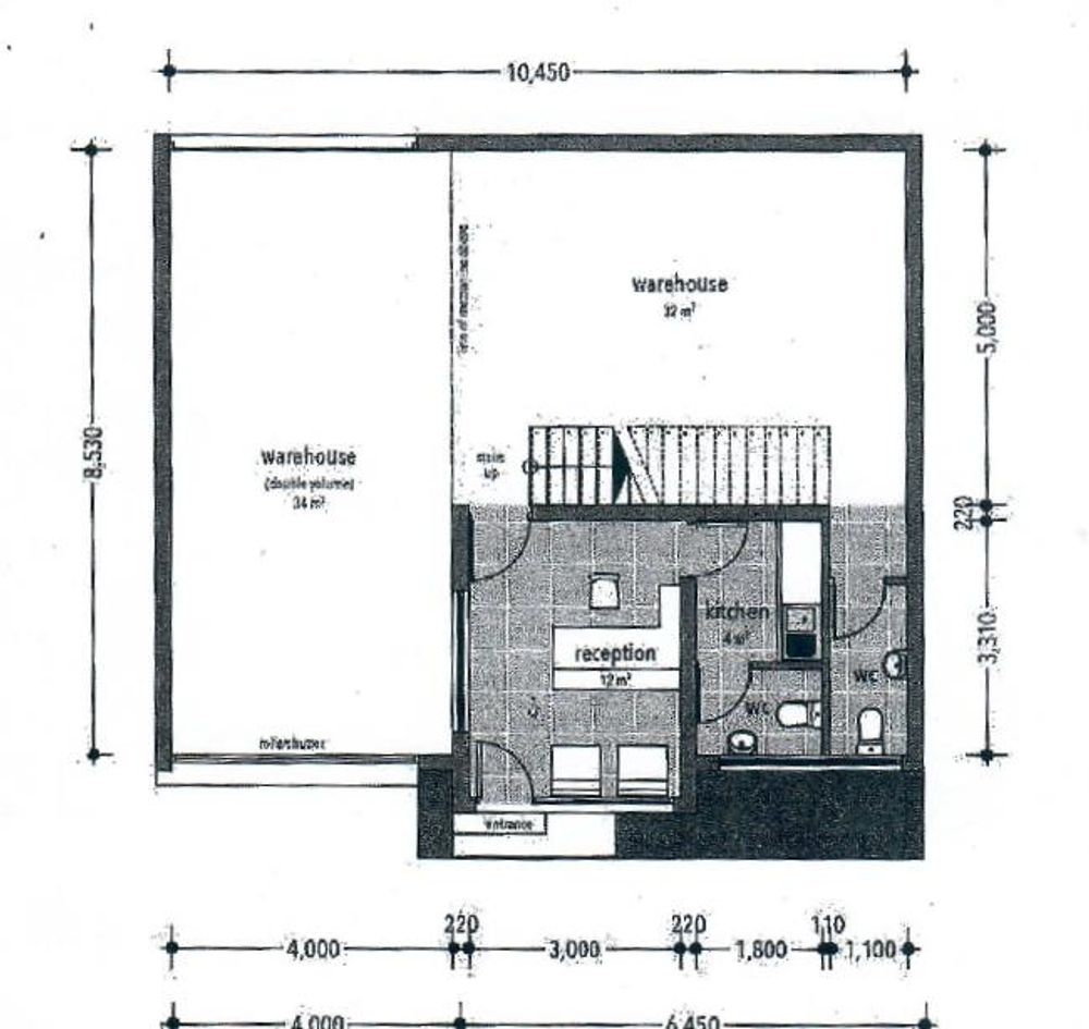
Ground Floor Features:

The ground floor boasts a spacious, double-volume garage area equipped with an extra-high roller door, perfect for accommodating large vehicles and equipment. The space has been thoughtfully divided into smaller, caged storage areas to enhance security. Additionally, you'll find separate his and hers ablutions, a welcoming reception area, and a kitchenette for added convenience.

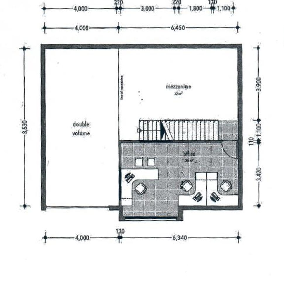
Top Floor Amenities:

Upstairs, the property features a large manager's or administrative office, alongside two mezzanine-level caged storage rooms. Several areas within the unit are fitted with air conditioning to ensure a comfortable working environment throughout the year.

Additional Benefits:

The unit operates on single-phase, pre-paid electricity, optimizing its running costs for greater affordability. Currently, the property is leased to a reliable and courteous tenant, with the lease set to renew at the end of November 2026. The current rental income is N$13,780 per month, VAT inclusive.

Viewings:

To explore this fantastic property further, please schedule a viewing by appointment during business hours. Don't miss out on this opportunity to secure a valuable asset in a sought-after industrial location.

Valuation

Valuation in place February 2026

Property Features
Property Type
Industrial
Floor Size
212m²
Costs and Terms
Levy
±N$2,471.12
Location
Make an enquiry
Interested in this property? Please fill in your details below, and we will contact you as soon as possible.
By clicking on "submit" you agree to our privacy policy.
Property Alerts
Receive email alerts for properties matching your criteria.